Top.Mail.Ru

Старобитцевская ул., д. 19, к. 2

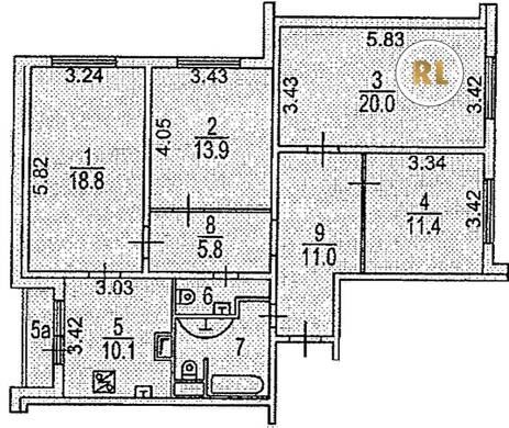
База каталог, Кол-во подъездов: 2, Имеется, КОПЭ, Москва, Северное Бутово, Пассажирский лифт: 4, От метро: 800, Юго-Западный, да, Наименьшее кол-во этажей: 22, Наибольшее кол-во этажей: 22, Улица Старокачаловская, Кол-во помещений: 176, Кол-во нежилых помещений: 2, Год ввода в эксплуатацию: 1992, 4-комн, Кол-во жилых помещений: 174, Не присвоен, дом 19, корпус 2, нет, да, да, да, да, да, Имеется, Грузовых лифтов: 2, Год постройки: 1992, Старобитцевская улица, 37.580616, 55.576640
Свяжитесь со мной на счет цены
10 дн.
V55S576640L37S580616V

На карте


Условия сделки

Источник


Старт продаж

Возможно заинтересует