Top.Mail.Ru

Востряковский проезд, д. 15, к. 4

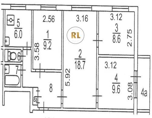
База каталог, Кол-во подъездов: 6, Имеется, II-49Д, Москва, Бирюлево Западное, Площадь парковки: 0, Пассажирский лифт: 6, От метро: 4500, Южный, нет, Наименьшее кол-во этажей: 9, Наибольшее кол-во этажей: 9, Улица Академика Янгеля, Кол-во помещений: 215, Кол-во нежилых помещений: 0, Год ввода в эксплуатацию: 1976, 4-комн, Кол-во жилых помещений: 215, Не присвоен, дом 15, корпус 4, нет, нет, нет, нет, нет, нет, Имеется, Грузовых лифтов: 0, Год постройки: 1976, Востряковский проезд, 37.649184, 55.576905
Свяжитесь со мной на счет цены
10 дн.
V55S576905L37S649184V

На карте


Условия сделки

Источник


Старт продаж

Возможно заинтересует