Top.Mail.Ru

Загорьевский проезд, д. 11

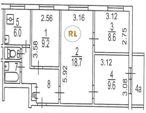
База каталог, Наибольшее кол-во этажей: 9, Имеется, II-49Д, Москва, Бирюлево Восточное, Пассажирский лифт: 6, Южный, да, Наименьшее кол-во этажей: 1, Кол-во помещений: 215, Год ввода в эксплуатацию: 1976, Кол-во подъездов: 6, Кол-во нежилых помещений: 0, 4-комн, Кол-во жилых помещений: 215, D, дом 11, Имеется, Грузовых лифтов: 0, Год постройки: 1976, Загорьевский проезд, 37.678802, 55.577337
Свяжитесь со мной на счет цены
10 дн.
V55S577337L37S678802V

На карте


Условия сделки

Источник


Старт продаж

Возможно заинтересует