Top.Mail.Ru

Загорьевский проезд, д. 17, к. 1

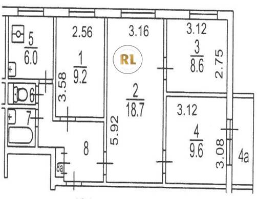
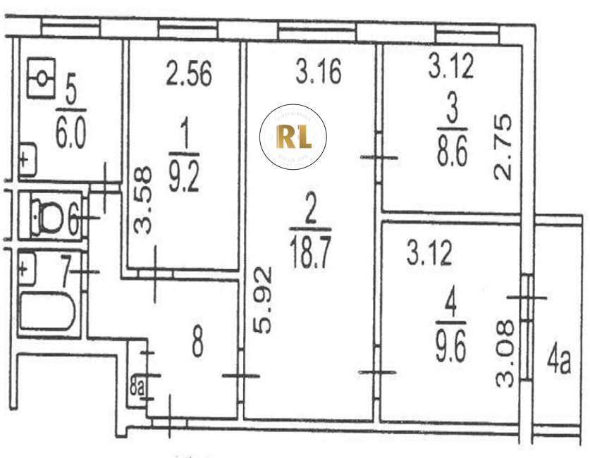
База каталог, Кол-во помещений: 215, II-49Д, Москва, Бирюлево Восточное, Пассажирский лифт: 6, Южный, да, Наименьшее кол-во этажей: 1, Наибольшее кол-во этажей: 9, Кол-во подъездов: 6, Год ввода в эксплуатацию: 1976, Кол-во нежилых помещений: 0, 4-комн, Кол-во жилых помещений: 215, D, дом 17, корпус 1, Имеется, Грузовых лифтов: 0, Год постройки: 1976, Загорьевский проезд, 37.682359, 55.578136
Свяжитесь со мной на счет цены
10 дн.
V55S578136L37S682359V

На карте


Условия сделки

Источник


Старт продаж

Возможно заинтересует