Top.Mail.Ru

Булатниковская ул., д. 5, к. 5

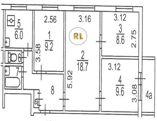
База каталог, Кол-во подъездов: 12, Имеется, II-49Д, Москва, Бирюлево Западное, Площадь парковки: 0, Пассажирский лифт: 12, От метро: 4600, Южный, нет, Наименьшее кол-во этажей: 9, Наибольшее кол-во этажей: 9, Улица Академика Янгеля, Кол-во помещений: 430, Кол-во нежилых помещений: 1, Год ввода в эксплуатацию: 1973, 4-комн, Кол-во жилых помещений: 429, Не присвоен, дом 5, корпус 5, нет, нет, нет, нет, нет, нет, Имеется, Грузовых лифтов: 0, Год постройки: 1973, Булатниковская улица, 37.653191, 55.578177
Свяжитесь со мной на счет цены
10 дн.
V55S578177L37S653191V

На карте


Условия сделки

Источник


Старт продаж

Возможно заинтересует