Top.Mail.Ru

Востряковский проезд, д. 13, к. 1

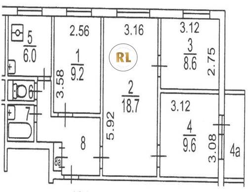
База каталог, Кол-во подъездов: 6, Имеется, II-49Д, Москва, Бирюлево Западное, Площадь парковки: 0, Пассажирский лифт: 6, От метро: 4200, Южный, нет, Наименьшее кол-во этажей: 9, Наибольшее кол-во этажей: 9, Улица Академика Янгеля, Кол-во помещений: 215, Кол-во нежилых помещений: 1, Год ввода в эксплуатацию: 1974, 4-комн, Кол-во жилых помещений: 214, Не присвоен, дом 13, корпус 1, нет, нет, нет, нет, нет, нет, Имеется, Грузовых лифтов: 0, Год постройки: 1974, Востряковский проезд, 37.647091, 55.578269
Свяжитесь со мной на счет цены
10 дн.
V55S578269L37S647091V

На карте


Условия сделки

Источник


Старт продаж

Возможно заинтересует