Top.Mail.Ru

Булатниковская ул., д. 5, к. 1

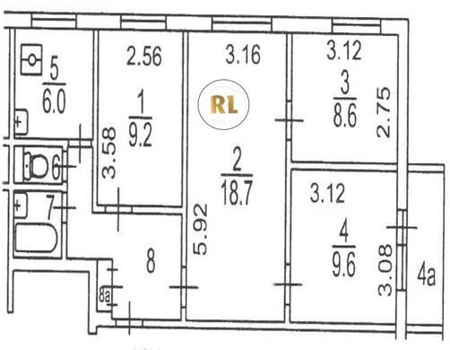
База каталог, Кол-во подъездов: 4, Имеется, II-49Д, Москва, Бирюлево Западное, Площадь парковки: 0, Пассажирский лифт: 4, От метро: 4600, Южный, нет, Наименьшее кол-во этажей: 9, Наибольшее кол-во этажей: 9, Улица Академика Янгеля, Кол-во помещений: 144, Кол-во нежилых помещений: 1, Год ввода в эксплуатацию: 1973, 4-комн, Кол-во жилых помещений: 143, Не присвоен, дом 5, корпус 1, нет, нет, нет, нет, нет, нет, Имеется, Грузовых лифтов: 0, Год постройки: 1973, Булатниковская улица, 37.654080, 55.579373
Свяжитесь со мной на счет цены
10 дн.
V55S579373L37S654080V

На карте


Условия сделки

Источник


Старт продаж

Возможно заинтересует