Top.Mail.Ru

Востряковский проезд, д. 1, к. 2

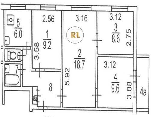
База каталог, Кол-во подъездов: 14, Имеется, II-49Д, Москва, Бирюлево Западное, Площадь парковки: 0, Пассажирский лифт: 14, От метро: 3400, Южный, нет, Наименьшее кол-во этажей: 9, Наибольшее кол-во этажей: 9, Улица Академика Янгеля, Кол-во помещений: 501, Кол-во нежилых помещений: 0, Год ввода в эксплуатацию: 1973, 4-комн, Кол-во жилых помещений: 501, Не присвоен, дом 1, корпус 2, нет, нет, нет, нет, нет, нет, Имеется, Грузовых лифтов: 0, Год постройки: 1973, Востряковский проезд, 37.643031, 55.586481
Свяжитесь со мной на счет цены
10 дн.
V55S586481L37S643031V

На карте


Условия сделки

Источник


Старт продаж

Возможно заинтересует