Top.Mail.Ru

Медынская ул., д. 10

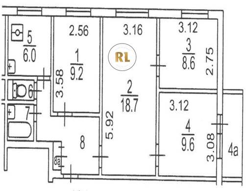
База каталог, Кол-во подъездов: 4, Имеется, II-49Д, Москва, Бирюлево Западное, Площадь парковки: 0, Пассажирский лифт: 8, От метро: 3600, Южный, нет, Наименьшее кол-во этажей: 12, Наибольшее кол-во этажей: 12, Улица Академика Янгеля, Кол-во помещений: 192, Кол-во нежилых помещений: 1, Год ввода в эксплуатацию: 1973, 4-комн, Кол-во жилых помещений: 191, Не присвоен, дом 10, нет, нет, нет, нет, нет, нет, Имеется, Грузовых лифтов: 0, Год постройки: 1973, Медынская улица, 37.644737, 55.588221
Свяжитесь со мной на счет цены
10 дн.
V55S588221L37S644737V

На карте


Условия сделки

Источник


Старт продаж

Возможно заинтересует