Top.Mail.Ru

Медынская ул., д. 8, к. 2

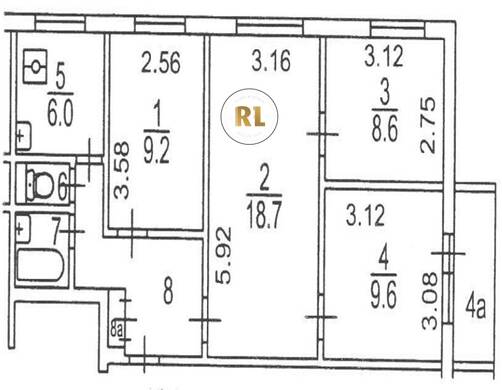
База каталог, Кол-во подъездов: 8, Имеется, II-49Д, Москва, Бирюлево Западное, Площадь парковки: 0, Пассажирский лифт: 8, От метро: 3700, Южный, нет, Наименьшее кол-во этажей: 9, Наибольшее кол-во этажей: 9, Улица Академика Янгеля, Кол-во помещений: 287, Кол-во нежилых помещений: 1, Год ввода в эксплуатацию: 1973, 4-комн, Кол-во жилых помещений: 286, Не присвоен, дом 8, корпус 2, нет, нет, нет, нет, нет, нет, Имеется, Грузовых лифтов: 0, Год постройки: 1973, Медынская улица, 37.644082, 55.590073
Свяжитесь со мной на счет цены
10 дн.
V55S590073L37S644082V

На карте


Условия сделки

Источник


Старт продаж

Возможно заинтересует