Top.Mail.Ru

Медынская ул., д. 5А

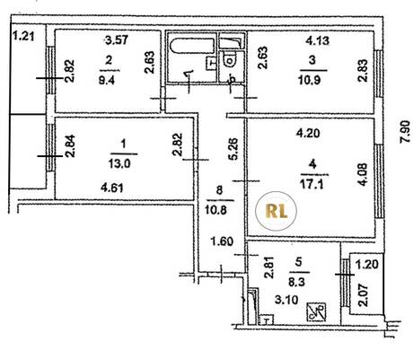
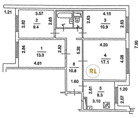
База каталог, Кол-во подъездов: 3, Имеется, П-30, Москва, Бирюлево Западное, Площадь парковки: 0, Пассажирский лифт: 6, От метро: 3800, Южный, нет, Наименьшее кол-во этажей: 14, Наибольшее кол-во этажей: 14, Улица Академика Янгеля, Кол-во помещений: 166, Кол-во нежилых помещений: 0, Год ввода в эксплуатацию: 1991, 4-комн, Кол-во жилых помещений: 166, Не присвоен, дом 5А, нет, нет, нет, нет, нет, нет, Имеется, Грузовых лифтов: 0, Год постройки: 1991, Медынская улица, 37.646938, 55.590139
Свяжитесь со мной на счет цены
10 дн.
V55S590139L37S646938V

На карте


Условия сделки

Источник


Старт продаж

Возможно заинтересует