Top.Mail.Ru

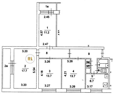
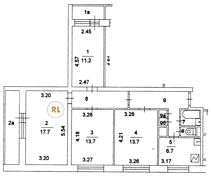
Липецкая ул., д. 24, к. 1

База каталог, Кол-во подъездов: 4, Имеется, I605-АМ, Москва, Бирюлево Восточное, Площадь парковки: 0, Пассажирский лифт: 8, От метро: 4600, Южный, нет, Наименьшее кол-во этажей: 1, Наибольшее кол-во этажей: 12, Орехово, Кол-во помещений: 192, Кол-во нежилых помещений: 1, Год ввода в эксплуатацию: 1972, 4-комн, Кол-во жилых помещений: 191, E, дом 24, корпус 1, нет, нет, нет, нет, нет, нет, Имеется, Грузовых лифтов: 0, Год постройки: 1972, Липецкая улица, 37.669998, 55.592846
Свяжитесь со мной на счет цены
10 дн.
V55S592846L37S669998V

На карте


Условия сделки

Источник


Старт продаж

Возможно заинтересует