Top.Mail.Ru

Дорожная ул., д. 30, к. 1

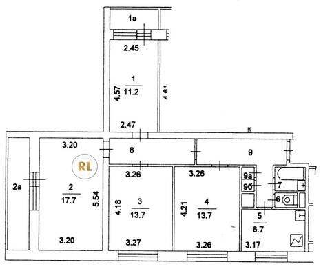
База каталог, Кол-во помещений: 215, I605-АМ, Москва, Чертаново Южное, Площадь парковки: 320, Пассажирский лифт: 6, От метро: 1040, Южный, да, Наименьшее кол-во этажей: 9, Наибольшее кол-во этажей: 9, Улица Академика Янгеля, Кол-во подъездов: 6, Год ввода в эксплуатацию: 1971, Кол-во нежилых помещений: 0, 4-комн, Кол-во жилых помещений: 215, дом 30, корпус 1, нет, да, да, да, да, да, Грузовых лифтов: 0, Год постройки: 1971, Дорожная улица, 37.616782, 55.595277
Свяжитесь со мной на счет цены
10 дн.
V55S595277L37S616782V

На карте


Условия сделки

Источник


Старт продаж

Возможно заинтересует