Top.Mail.Ru

Бирюлевская ул., д. 13, к. 2

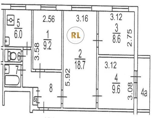
База каталог, Кол-во подъездов: 6, II-49Д, Москва, Бирюлево Восточное, Пассажирский лифт: 6, От метро: 4300, Южный, да, Наименьшее кол-во этажей: 1, Наибольшее кол-во этажей: 9, Орехово, Кол-во помещений: 215, Кол-во нежилых помещений: 0, Год ввода в эксплуатацию: 1971, 4-комн, Кол-во жилых помещений: 215, D, дом 13, корпус 2, нет, нет, нет, нет, нет, нет, Грузовых лифтов: 0, Год постройки: 1971, Бирюлевская улица, 37.666495, 55.596941
Свяжитесь со мной на счет цены
10 дн.
V55S596941L37S666495V

На карте


Условия сделки

Источник


Старт продаж

Возможно заинтересует