Top.Mail.Ru

Дорожная ул., д. 24, к. 2

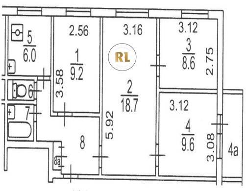
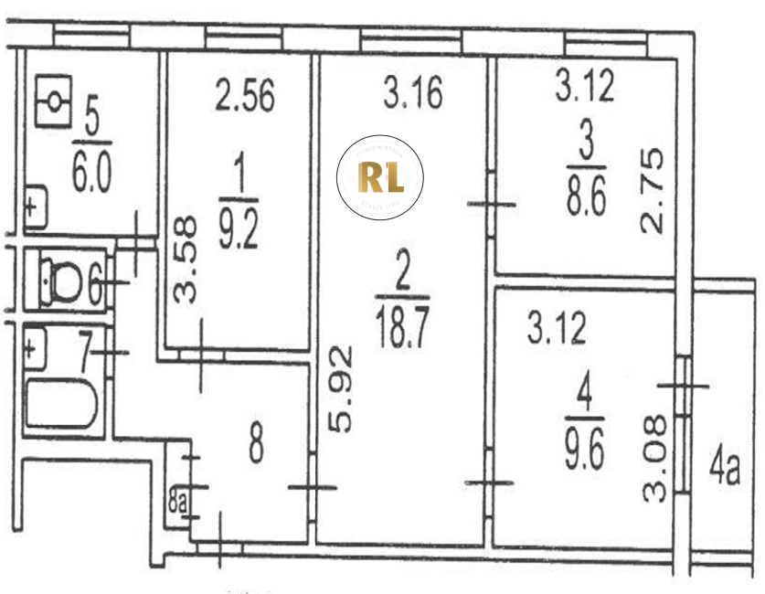
База каталог, Кол-во подъездов: 10, II-49Д, Москва, Чертаново Южное, Площадь парковки: 0, Пассажирский лифт: 10, От метро: 1140, Южный, нет, Наименьшее кол-во этажей: 9, Наибольшее кол-во этажей: 9, Улица Академика Янгеля, Кол-во помещений: 357, Кол-во нежилых помещений: 0, Год ввода в эксплуатацию: 1971, 4-комн, Кол-во жилых помещений: 357, дом 24, корпус 2, нет, да, да, да, да, нет, Имеется, Грузовых лифтов: 0, Год постройки: 1971, Дорожная улица, 37.615794, 55.598634
Свяжитесь со мной на счет цены
10 дн.
V55S598634L37S615794V

На карте


Условия сделки

Источник


Старт продаж

Возможно заинтересует