Top.Mail.Ru

3-й Дорожный проезд, д. 10, к. 2

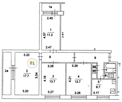
База каталог, Кол-во помещений: 191, Имеется, I605-АМ, Москва, Чертаново Южное, Площадь парковки: 514, Пассажирский лифт: 8, От метро: 1540, Южный, да, Наименьшее кол-во этажей: 12, Наибольшее кол-во этажей: 12, Улица Академика Янгеля, Кол-во подъездов: 4, Год ввода в эксплуатацию: 1972, Кол-во нежилых помещений: 0, 4-комн, Кол-во жилых помещений: 191, дом 10, корпус 2, нет, да, да, да, да, нет, Имеется, Грузовых лифтов: 0, Год постройки: 1972, 3-й Дорожный проезд, 37.620231, 55.600206
Свяжитесь со мной на счет цены
10 дн.
V55S600206L37S620231V

На карте


Условия сделки

Источник


Старт продаж

Возможно заинтересует