Top.Mail.Ru

улица Красного Маяка, д. 19, к. 1

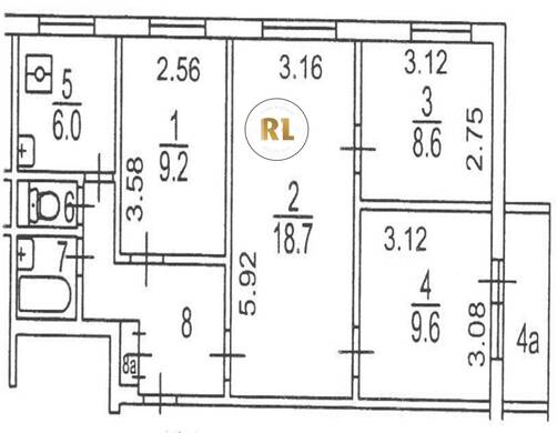
База каталог, Кол-во подъездов: 6, Имеется, II-49Д, Москва, Чертаново Центральное, Пассажирский лифт: 6, От метро: 1910, Южный, да, Наименьшее кол-во этажей: 9, Наибольшее кол-во этажей: 9, Пражская, Кол-во помещений: 215, Кол-во нежилых помещений: 0, Год ввода в эксплуатацию: 1976, 4-комн, Кол-во жилых помещений: 215, Не присвоен, дом 19, корпус 1, нет, да, да, да, нет, нет, Имеется, Грузовых лифтов: 0, Год постройки: 1976, улица Красного Маяка, 37.579798, 55.605373
Свяжитесь со мной на счет цены
10 дн.
V55S605373L37S579798V

На карте


Условия сделки

Источник


Старт продаж

Возможно заинтересует