Top.Mail.Ru

Каширское шоссе, д. 116, к. 2

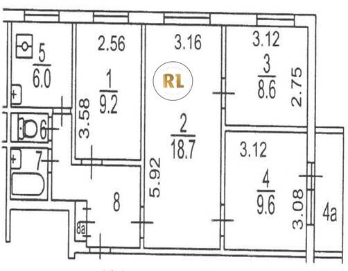
База каталог, Кол-во подъездов: 6, II-49Д, Москва, Орехово-Борисово Южное, Пассажирский лифт: 6, От метро: 540, Южный, да, Наименьшее кол-во этажей: 9, Наибольшее кол-во этажей: 9, Домодедовская, Кол-во помещений: 214, Кол-во нежилых помещений: 0, Год ввода в эксплуатацию: 1974, 4-комн, Кол-во жилых помещений: 214, дом 116, корпус 2, да, да, да, да, да, да, Грузовых лифтов: 0, Год постройки: 1974, Каширское шоссе, 37.715659, 55.605999
Свяжитесь со мной на счет цены
10 дн.
V55S605999L37S715659V

На карте


Условия сделки

Источник


Старт продаж

Возможно заинтересует