Top.Mail.Ru

Новоясеневский проспект, д. 14, к. 2

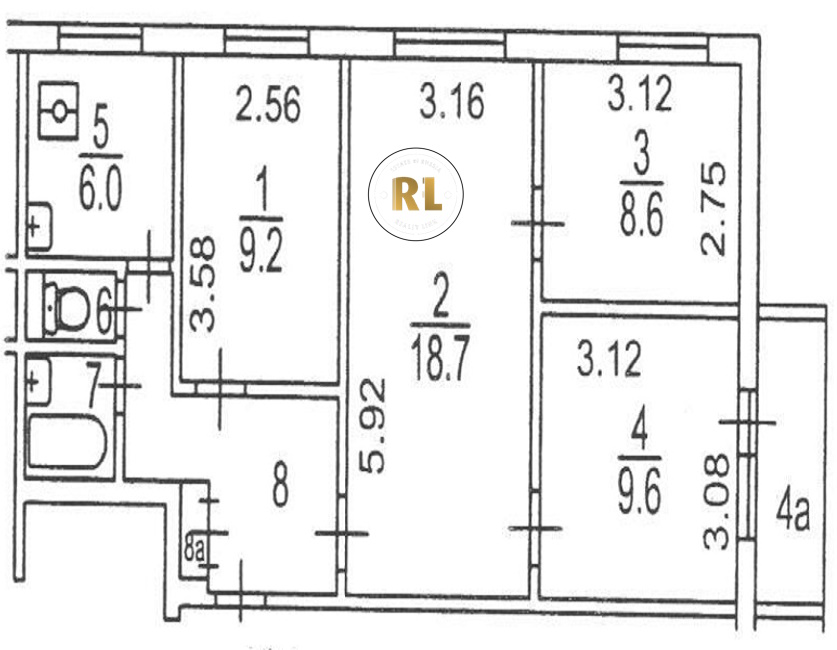
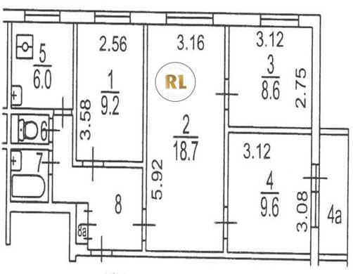
База каталог, Кол-во подъездов: 2, II-49Д, Москва, Ясенево, Площадь парковки: 0, Пассажирский лифт: 2, От метро: 830, Юго-Западный, нет, Наименьшее кол-во этажей: 9, Наибольшее кол-во этажей: 9, Ясенево, Кол-во помещений: 71, Кол-во нежилых помещений: 0, Год ввода в эксплуатацию: 1976, 4-комн, Кол-во жилых помещений: 71, Не присвоен, дом 14, корпус 2, нет, да, да, да, да, да, Имеется, Грузовых лифтов: 0, Год постройки: 1976, Новоясеневский проспект, 37.520734, 55.606090
Свяжитесь со мной на счет цены
10 дн.
V55S606090L37S520734V

На карте


Условия сделки

Источник


Старт продаж

Возможно заинтересует