Top.Mail.Ru

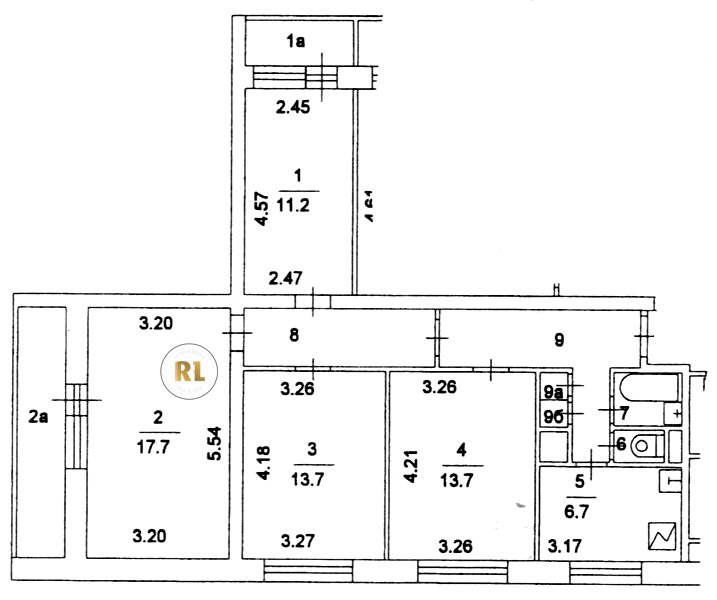
Ясеневая ул., д. 41, к. 1

База каталог, Кол-во подъездов: 8, I605-АМ, Москва, Орехово-Борисово Южное, Пассажирский лифт: 8, От метро: 480, Южный, да, Наименьшее кол-во этажей: 12, Наибольшее кол-во этажей: 12, Зябликово, Кол-во помещений: 380, Кол-во нежилых помещений: 0, Год ввода в эксплуатацию: 1977, 4-комн, Кол-во жилых помещений: 380, дом 41, корпус 1, да, да, да, да, да, да, Грузовых лифтов: 8, Год постройки: 1977, Ясеневая улица, 37.743354, 55.607590
Свяжитесь со мной на счет цены
10 дн.
V55S607590L37S743354V

На карте


Условия сделки

Источник


Старт продаж

Возможно заинтересует