Top.Mail.Ru

улица Красного Маяка, д. 13А, к. 5

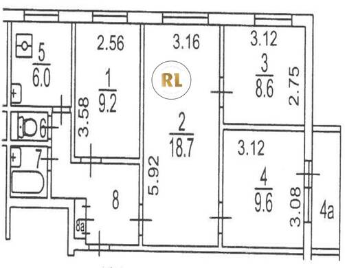
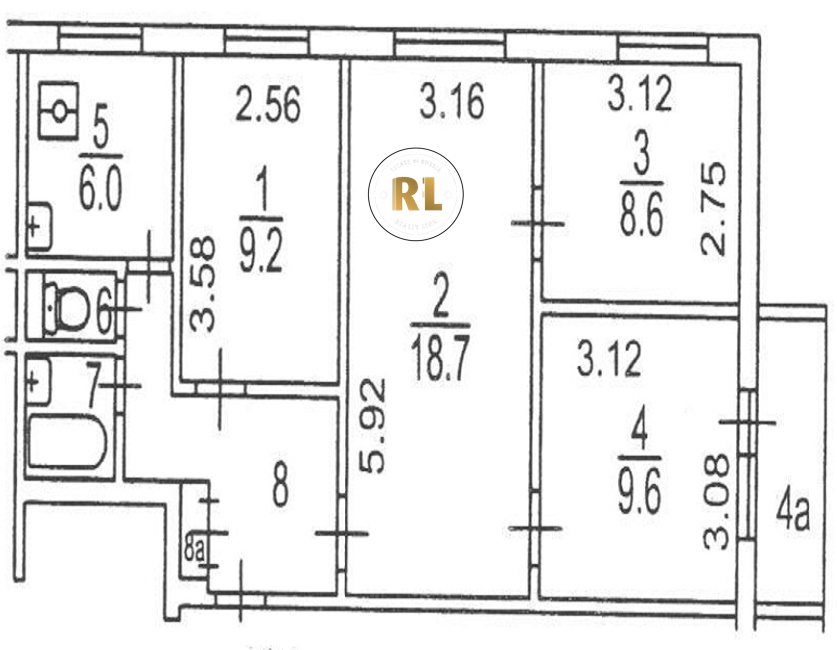
База каталог, Кол-во подъездов: 4, II-49Д, Москва, Чертаново Центральное, Пассажирский лифт: 4, От метро: 1570, Южный, да, Наименьшее кол-во этажей: 0, Наибольшее кол-во этажей: 9, Пражская, Кол-во помещений: 145, Кол-во нежилых помещений: 1, Год ввода в эксплуатацию: 1975, 4-комн, Кол-во жилых помещений: 144, дом 13А, корпус 5, нет, да, да, да, да, нет, Грузовых лифтов: 0, Год постройки: 1975, улица Красного Маяка, 37.583239, 55.608272
Свяжитесь со мной на счет цены
10 дн.
V55S608272L37S583239V

На карте


Условия сделки

Источник


Старт продаж

Возможно заинтересует