Top.Mail.Ru

Чертановская ул., д. 39, к. 2

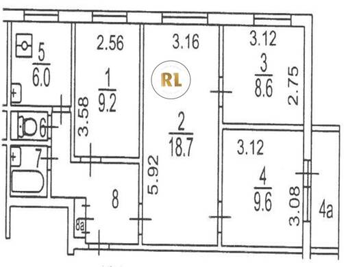
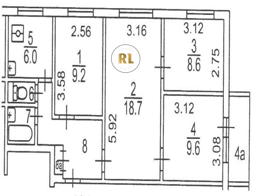
База каталог, Кол-во подъездов: 4, II-49Д, Москва, Чертаново Центральное, Пассажирский лифт: 4, От метро: 830, Южный, да, Наименьшее кол-во этажей: 0, Наибольшее кол-во этажей: 9, Пражская, Кол-во помещений: 144, Кол-во нежилых помещений: 0, Год ввода в эксплуатацию: 1970, 4-комн, Кол-во жилых помещений: 144, дом 39, корпус 2, нет, да, да, да, да, да, Грузовых лифтов: 0, Год постройки: 1970, Чертановская улица, 37.594216, 55.609472
Свяжитесь со мной на счет цены
10 дн.
V55S609472L37S594216V

На карте


Условия сделки

Источник


Старт продаж

Возможно заинтересует