Top.Mail.Ru

Ясногорская ул., д. 3

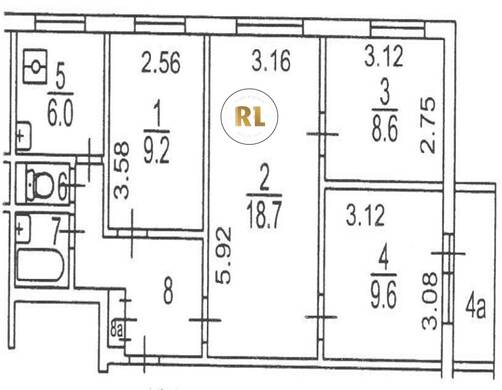
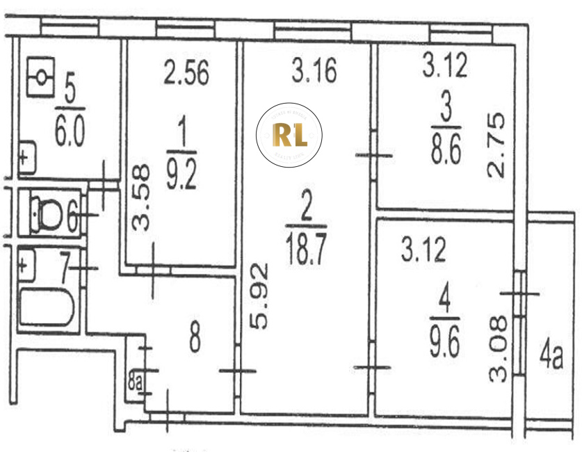
База каталог, Кол-во подъездов: 10, Отсутствует, II-49Д, Москва, Ясенево, Площадь парковки: 0, Пассажирский лифт: 10, От метро: 770, Юго-Западный, нет, Наименьшее кол-во этажей: 9, Наибольшее кол-во этажей: 9, Ясенево, Кол-во помещений: 358, Кол-во нежилых помещений: 5, Год ввода в эксплуатацию: 1977, 4-комн, Кол-во жилых помещений: 353, Не присвоен, дом 3, нет, да, да, да, да, да, Имеется, Грузовых лифтов: 0, Год постройки: 1977, Ясногорская улица, 37.541090, 55.609975
Свяжитесь со мной на счет цены
10 дн.
V55S609975L37S541090V

На карте


Условия сделки

Источник


Старт продаж

Возможно заинтересует