Top.Mail.Ru

улица Красного Маяка, д. 1, к. 3

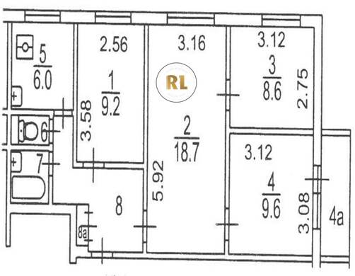
База каталог, Кол-во нежилых помещений: 0, II-49Д, Москва, Чертаново Центральное, Пассажирский лифт: 9, От метро: 390, Южный, да, Наименьшее кол-во этажей: 9, Наибольшее кол-во этажей: 9, Пражская, Кол-во помещений: 144, Кол-во подъездов: 4, 4-комн, Год ввода в эксплуатацию: 1971, Кол-во жилых помещений: 144, Не присвоен, дом 1, корпус 3, да, да, да, да, да, да, Имеется, Грузовых лифтов: 0, Год постройки: 1971, улица Красного Маяка, 37.598178, 55.610377
Свяжитесь со мной на счет цены
10 дн.
V55S610377L37S598178V

На карте


Условия сделки

Источник


Старт продаж

Возможно заинтересует