Top.Mail.Ru

улица Красного Маяка, д. 13А, к. 1

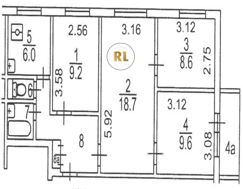
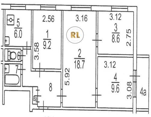
База каталог, Кол-во нежилых помещений: 0, II-49Д, Москва, Чертаново Центральное, Пассажирский лифт: 4, От метро: 1780, Южный, да, Наименьшее кол-во этажей: 9, Наибольшее кол-во этажей: 9, Пражская, Кол-во помещений: 144, Кол-во подъездов: 4, 4-комн, Год ввода в эксплуатацию: 1975, Кол-во жилых помещений: 144, Не присвоен, дом 13А, корпус 1, нет, да, да, да, нет, нет, Имеется, Грузовых лифтов: 0, Год постройки: 1975, улица Красного Маяка, 37.579628, 55.610641
Свяжитесь со мной на счет цены
10 дн.
V55S610641L37S579628V

На карте


Условия сделки

Источник


Старт продаж

Возможно заинтересует