Top.Mail.Ru

Чертановская ул., д. 42, к. 1

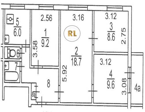
База каталог, Кол-во подъездов: 6, Имеется, II-49Д, Москва, Чертаново Центральное, Пассажирский лифт: 6, От метро: 880, Южный, да, Наименьшее кол-во этажей: 9, Наибольшее кол-во этажей: 9, Пражская, Кол-во помещений: 216, Кол-во нежилых помещений: 1, Год ввода в эксплуатацию: 1971, 4-комн, Кол-во жилых помещений: 215, Не присвоен, дом 42, корпус 1, нет, да, да, да, да, да, Отсутствует, Грузовых лифтов: 0, Год постройки: 1971, Чертановская улица, 37.590623, 55.611073
Свяжитесь со мной на счет цены
10 дн.
V55S611073L37S590623V

На карте


Условия сделки

Источник


Старт продаж

Возможно заинтересует