Top.Mail.Ru

Домодедовская ул., д. 11, к. 1

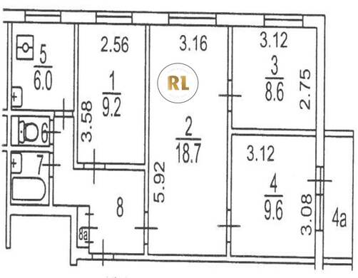
База каталог, Кол-во подъездов: 6, Имеется, II-49Д, Москва, Орехово-Борисово Северное, Пассажирский лифт: 6, От метро: 530, Южный, да, Наименьшее кол-во этажей: 1, Наибольшее кол-во этажей: 9, Домодедовская, Кол-во помещений: 214, Кол-во нежилых помещений: 5, Год ввода в эксплуатацию: 1973, 4-комн, Кол-во жилых помещений: 209, дом 11, корпус 1, да, да, да, да, да, да, Имеется, Грузовых лифтов: 0, Год постройки: 1973, Домодедовская улица, 37.709344, 55.611124
Свяжитесь со мной на счет цены
10 дн.
V55S611124L37S709344V

На карте


Условия сделки

Источник


Старт продаж

Возможно заинтересует