Top.Mail.Ru

улица Красного Маяка, д. 13, к. 5

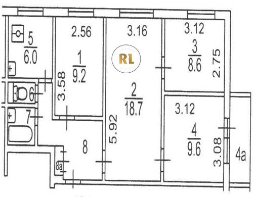
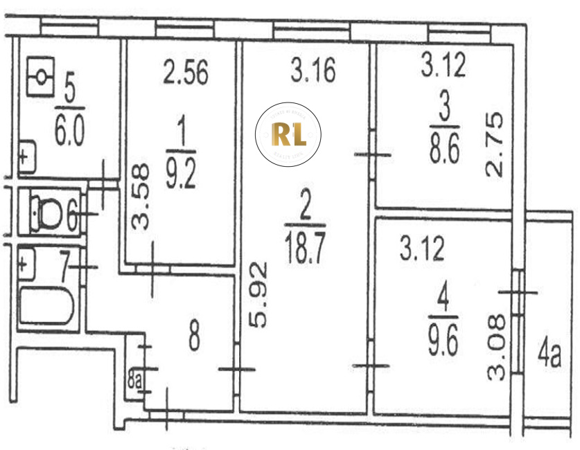
База каталог, Кол-во подъездов: 8, Имеется, II-49Д, Москва, Чертаново Центральное, Пассажирский лифт: 8, От метро: 1510, Южный, да, Наименьшее кол-во этажей: 9, Наибольшее кол-во этажей: 9, Пражская, Кол-во помещений: 287, Кол-во нежилых помещений: 0, Год ввода в эксплуатацию: 1975, 4-комн, Кол-во жилых помещений: 287, Не присвоен, дом 13, корпус 5, нет, да, да, да, да, нет, Имеется, Грузовых лифтов: 0, Год постройки: 1975, улица Красного Маяка, 37.582736, 55.611297
Свяжитесь со мной на счет цены
10 дн.
V55S611297L37S582736V

На карте


Условия сделки

Источник


Старт продаж

Возможно заинтересует