Top.Mail.Ru

Шипиловский проезд, д. 43, к. 3

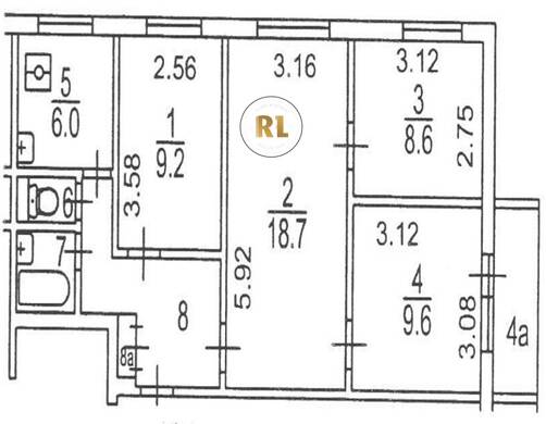
База каталог, Кол-во подъездов: 6, Имеется, II-49Д, Москва, Орехово-Борисово Северное, Площадь парковки: 0, Пассажирский лифт: 6, От метро: 400, Южный, нет, Наименьшее кол-во этажей: 1, Наибольшее кол-во этажей: 9, Орехово, Кол-во помещений: 211, Кол-во нежилых помещений: 1, Год ввода в эксплуатацию: 1974, 4-комн, Кол-во жилых помещений: 210, В, дом 43, корпус 3, да, да, да, да, да, да, Имеется, Грузовых лифтов: 0, Год постройки: 1974, Шипиловский проезд, 37.700460, 55.611378
Свяжитесь со мной на счет цены
10 дн.
V55S611378L37S700460V

На карте


Условия сделки

Источник


Старт продаж

Возможно заинтересует