Top.Mail.Ru

улица Красного Маяка, д. 13, к. 4

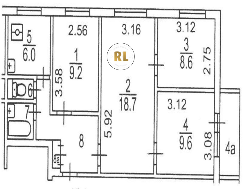
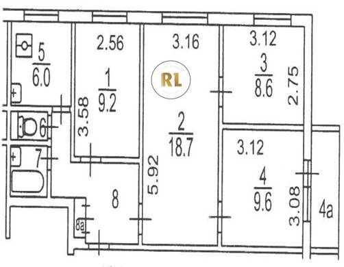
База каталог, Кол-во помещений: 144, II-49Д, Москва, Чертаново Центральное, Площадь парковки: 0, Пассажирский лифт: 4, От метро: 1710, Южный, нет, Наименьшее кол-во этажей: 0, Наибольшее кол-во этажей: 9, Пражская, Кол-во подъездов: 4, Год ввода в эксплуатацию: 1975, Кол-во нежилых помещений: 0, 4-комн, Кол-во жилых помещений: 144, дом 13, корпус 4, нет, да, да, да, нет, нет, Грузовых лифтов: 0, Год постройки: 1975, улица Красного Маяка, 37.579753, 55.611567
Свяжитесь со мной на счет цены
10 дн.
V55S611567L37S579753V

На карте


Условия сделки

Источник


Старт продаж

Возможно заинтересует