Top.Mail.Ru

улица Красного Маяка, д. 11, к. 3

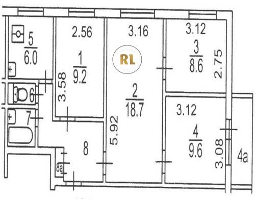
База каталог, Кол-во нежилых помещений: 0, II-49-06, Москва, Чертаново Центральное, Пассажирский лифт: 6, От метро: 1290, Южный, да, Наименьшее кол-во этажей: 9, Наибольшее кол-во этажей: 9, Пражская, Кол-во помещений: 215, Кол-во подъездов: 6, 4-комн, Год ввода в эксплуатацию: 1971, Кол-во жилых помещений: 215, Не присвоен, дом 11, корпус 3, нет, да, да, да, да, нет, Имеется, Грузовых лифтов: 0, Год постройки: 1971, улица Красного Маяка, 37.584442, 55.611633
Свяжитесь со мной на счет цены
10 дн.
V55S611633L37S584442V

На карте


Условия сделки

Источник


Старт продаж

Возможно заинтересует