Top.Mail.Ru

Домодедовская ул., д. 7, к. 2

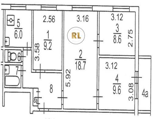
База каталог, Кол-во подъездов: 8, Имеется, II-49Д, Москва, Орехово-Борисово Северное, Пассажирский лифт: 8, От метро: 500, Южный, да, Наименьшее кол-во этажей: 1, Наибольшее кол-во этажей: 9, Домодедовская, Кол-во помещений: 284, Кол-во нежилых помещений: 8, Год ввода в эксплуатацию: 1973, 4-комн, Кол-во жилых помещений: 276, дом 7, корпус 2, да, да, да, да, да, да, Имеется, Грузовых лифтов: 0, Год постройки: 1973, Домодедовская улица, 37.710386, 55.612426
Свяжитесь со мной на счет цены
10 дн.
V55S612426L37S710386V

На карте


Условия сделки

Источник


Старт продаж

Возможно заинтересует