Top.Mail.Ru

Ореховый бульвар, д. 21, к. 1

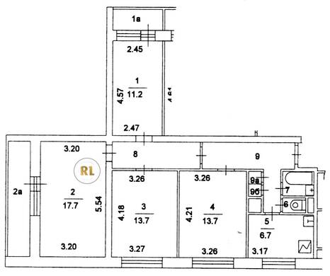
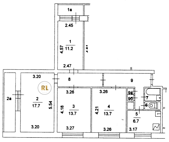
База каталог, Кол-во подъездов: 8, Имеется, I605-АМ, Москва, Орехово-Борисово Северное, Площадь парковки: 384, Пассажирский лифт: 8, От метро: 272, Южный, да, Наименьшее кол-во этажей: 1, Наибольшее кол-во этажей: 12, Домодедовская, Кол-во помещений: 387, Кол-во нежилых помещений: 4, Год ввода в эксплуатацию: 1975, 4-комн, Кол-во жилых помещений: 383, Не присвоен, дом 21, корпус 1, да, да, да, да, да, да, Имеется, Грузовых лифтов: 8, Год постройки: 1975, Ореховый бульвар, 37.724427, 55.612492
Свяжитесь со мной на счет цены
10 дн.
V55S612492L37S724427V

На карте


Условия сделки

Источник


Старт продаж

Возможно заинтересует