Top.Mail.Ru

Ореховый бульвар, д. 23, к. 1

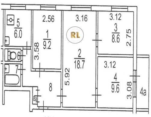
База каталог, Кол-во подъездов: 4, Отсутствует, II-49Д, Москва, Орехово-Борисово Северное, Пассажирский лифт: 4, От метро: 500, Южный, да, Наименьшее кол-во этажей: 9, Наибольшее кол-во этажей: 9, Домодедовская, Кол-во помещений: 144, Кол-во нежилых помещений: 0, Год ввода в эксплуатацию: 1975, 4-комн, Кол-во жилых помещений: 144, дом 23, корпус 1, да, да, да, да, да, да, Имеется, Грузовых лифтов: 0, Год постройки: 1975, Ореховый бульвар, 37.725747, 55.613504
Свяжитесь со мной на счет цены
10 дн.
V55S613504L37S725747V

На карте


Условия сделки

Источник


Старт продаж

Возможно заинтересует