Top.Mail.Ru

улица Красного Маяка, д. 4, к. 2

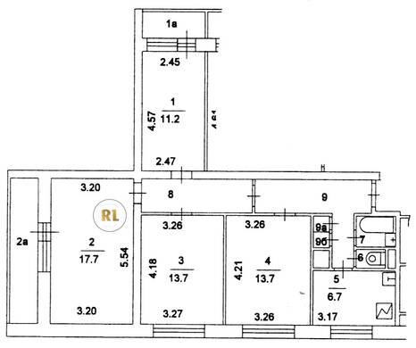
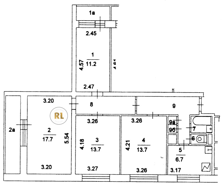
База каталог, Кол-во помещений: 493, I605-АМ, Москва, Чертаново Центральное, Площадь парковки: 0, Пассажирский лифт: 14, От метро: 400, Южный, нет, Наименьшее кол-во этажей: 0, Наибольшее кол-во этажей: 9, Пражская, Кол-во подъездов: 14, Год ввода в эксплуатацию: 1970, Кол-во нежилых помещений: 0, 4-комн, Кол-во жилых помещений: 493, дом 4, корпус 2, да, да, да, да, да, да, Грузовых лифтов: 0, Год постройки: 1970, улица Красного Маяка, 37.599768, 55.613885
Свяжитесь со мной на счет цены
10 дн.
V55S613885L37S599768V

На карте


Условия сделки

Источник


Старт продаж

Возможно заинтересует