Top.Mail.Ru

Домодедовская ул., д. 1, к. 3

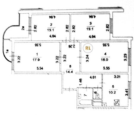
База каталог, Кол-во подъездов: 3, Имеется, П-3M, Москва, Орехово-Борисово Северное, Пассажирский лифт: 3, От метро: 920, Южный, да, Наименьшее кол-во этажей: 1, Наибольшее кол-во этажей: 17, Орехово, Кол-во помещений: 207, Кол-во нежилых помещений: 3, Год ввода в эксплуатацию: 2000, 4-комн, Кол-во жилых помещений: 204, дом 1, корпус 3, нет, да, да, да, да, да, Имеется, Грузовых лифтов: 3, Год постройки: 2000, Домодедовская улица, 37.707557, 55.614643
Свяжитесь со мной на счет цены
10 дн.
V55S614643L37S707557V

На карте


Условия сделки

Источник


Старт продаж

Возможно заинтересует