Top.Mail.Ru

Чертановская ул., д. 29, к. 2

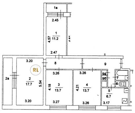
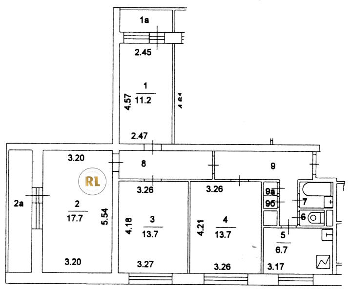
База каталог, Кол-во подъездов: 8, I605-АМ, Москва, Чертаново Центральное, Пассажирский лифт: 8, От метро: 730, Южный, да, Наименьшее кол-во этажей: 0, Наибольшее кол-во этажей: 9, Пражская, Кол-во помещений: 288, Кол-во нежилых помещений: 0, Год ввода в эксплуатацию: 1970, 4-комн, Кол-во жилых помещений: 288, дом 29, корпус 2, нет, да, да, да, да, да, Грузовых лифтов: 0, Год постройки: 1970, Чертановская улица, 37.596049, 55.615044
Свяжитесь со мной на счет цены
10 дн.
V55S615044L37S596049V

На карте


Условия сделки

Источник


Старт продаж

Возможно заинтересует