Top.Mail.Ru

Чертановская ул., д. 34, к. 1

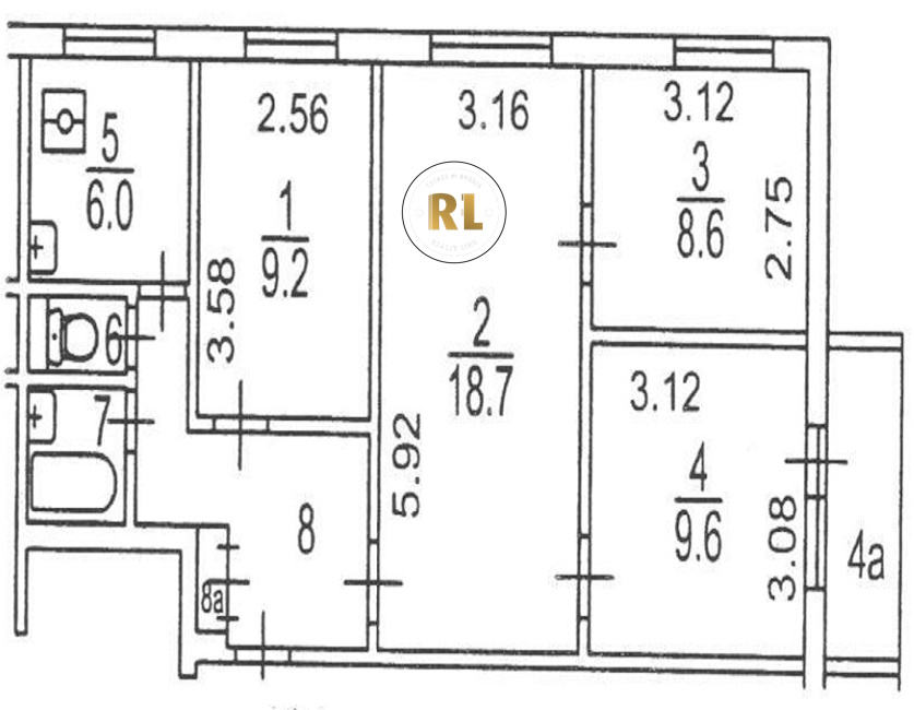
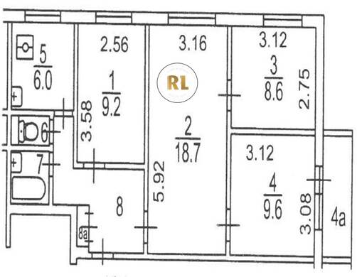
База каталог, Кол-во подъездов: 8, II-49Д, Москва, Чертаново Центральное, Пассажирский лифт: 8, От метро: 1030, Южный, да, Наименьшее кол-во этажей: 0, Наибольшее кол-во этажей: 9, Пражская, Кол-во помещений: 287, Кол-во нежилых помещений: 0, Год ввода в эксплуатацию: 1975, 4-комн, Кол-во жилых помещений: 287, дом 34, корпус 1, нет, да, да, да, да, да, Имеется, Грузовых лифтов: 0, Год постройки: 1975, Чертановская улица, 37.590740, 55.616575
Свяжитесь со мной на счет цены
10 дн.
V55S616575L37S590740V

На карте


Условия сделки

Источник


Старт продаж

Возможно заинтересует