Top.Mail.Ru

Кустанайская ул., д. 10, к. 1

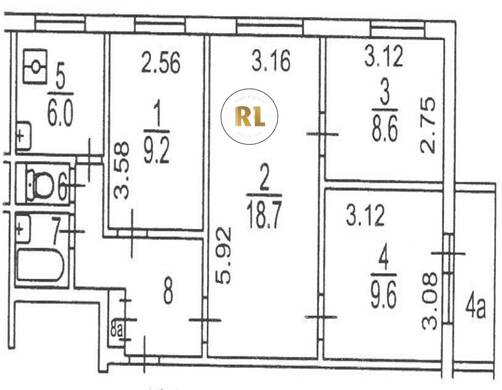
База каталог, Кол-во подъездов: 8, Отсутствует, II-49-08М, Москва, Зябликово, Площадь парковки: 1653,2, Пассажирский лифт: 8, От метро: 750, Южный, да, Наименьшее кол-во этажей: 1, Наибольшее кол-во этажей: 9, Красногвардейская, Кол-во помещений: 285, Кол-во нежилых помещений: 0, Год ввода в эксплуатацию: 1976, 4-комн, Кол-во жилых помещений: 285, F, дом 10, корпус 1, нет, да, да, да, да, да, Имеется, Грузовых лифтов: 0, Год постройки: 1976, Кустанайская улица, 37.752760, 55.618166
Свяжитесь со мной на счет цены
10 дн.
V55S618166L37S752760V

На карте


Условия сделки

Источник


Старт продаж

Возможно заинтересует