Top.Mail.Ru

Кустанайская ул., д. 8, к. 1

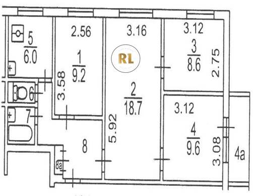
База каталог, Кол-во подъездов: 4, Отсутствует, II-49-08М, Москва, Зябликово, Площадь парковки: 1262,3, Пассажирский лифт: 4, От метро: 620, Южный, да, Наименьшее кол-во этажей: 0, Наибольшее кол-во этажей: 9, Шипиловская, Кол-во помещений: 144, Кол-во нежилых помещений: 0, Год ввода в эксплуатацию: 1976, 4-комн, Кол-во жилых помещений: 144, E, дом 8, корпус 1, нет, да, да, да, да, да, Имеется, Грузовых лифтов: 0, Год постройки: 1976, Кустанайская улица, 37.751601, 55.618883
Свяжитесь со мной на счет цены
10 дн.
V55S618883L37S751601V

На карте


Условия сделки

Источник


Старт продаж

Возможно заинтересует