Top.Mail.Ru

Шипиловская ул., д. 50, к. 3

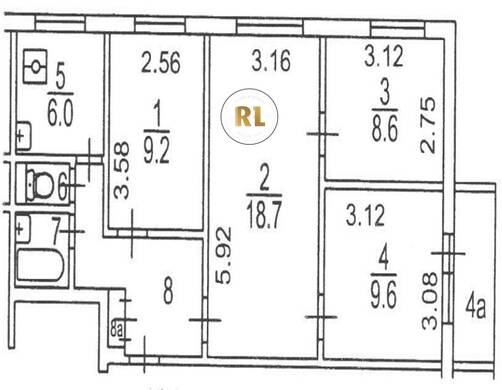
База каталог, Кол-во подъездов: 4, II-49Д, Москва, Зябликово, Пассажирский лифт: 4, От метро: 550, Южный, да, Наименьшее кол-во этажей: 1, Наибольшее кол-во этажей: 9, Шипиловская, Кол-во помещений: 144, Кол-во нежилых помещений: 0, Год ввода в эксплуатацию: 1976, 4-комн, Кол-во жилых помещений: 144, дом 50, корпус 3, да, да, да, да, да, да, Грузовых лифтов: 0, Год постройки: 1976, Шипиловская улица, 37.737417, 55.619676
Свяжитесь со мной на счет цены
10 дн.
V55S619676L37S737417V

На карте


Условия сделки

Источник


Старт продаж

Возможно заинтересует