Top.Mail.Ru

Шипиловская ул., д. 46, к. 1

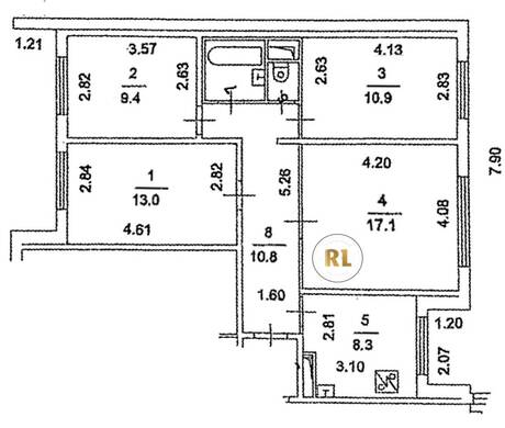
База каталог, Кол-во подъездов: 6, Имеется, П-30, Москва, Зябликово, Площадь парковки: 1005,3, Пассажирский лифт: 6, От метро: 660, Южный, да, Наименьшее кол-во этажей: 1, Наибольшее кол-во этажей: 12, Шипиловская, Кол-во помещений: 298, Кол-во нежилых помещений: 0, Год ввода в эксплуатацию: 1976, 4-комн, Кол-во жилых помещений: 298, E, дом 46, корпус 1, нет, да, да, да, да, да, Отсутствует, Грузовых лифтов: 6, Год постройки: 1976, Шипиловская улица, 37.734398, 55.620316
Свяжитесь со мной на счет цены
10 дн.
V55S620316L37S734398V

На карте


Условия сделки

Источник


Старт продаж

Возможно заинтересует