Top.Mail.Ru

Задонский проезд, д. 32, к. 1

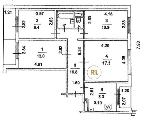
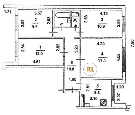
База каталог, Кол-во подъездов: 2, П-30, Москва, Зябликово, Пассажирский лифт: 4, От метро: 1040, Южный, да, Наименьшее кол-во этажей: 1, Наибольшее кол-во этажей: 14, Шипиловская, Кол-во помещений: 111, Кол-во нежилых помещений: 0, Год ввода в эксплуатацию: 1986, 4-комн, Кол-во жилых помещений: 111, дом 32, корпус 1, нет, да, да, да, да, да, Грузовых лифтов: 0, Год постройки: 1986, Задонский проезд, 37.758150, 55.621592
Свяжитесь со мной на счет цены
10 дн.
V55S621592L37S758150V

На карте


Условия сделки

Источник


Старт продаж

Возможно заинтересует