Top.Mail.Ru

Днепропетровская ул., д. 3, к. 5

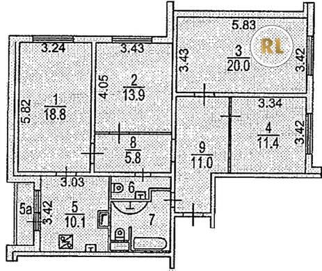
База каталог, Кол-во подъездов: 3, КОПЭ, Москва, Чертаново Центральное, Пассажирский лифт: 6, От метро: 380, Южный, да, Наименьшее кол-во этажей: 22, Наибольшее кол-во этажей: 22, Южная, Кол-во помещений: 252, Кол-во нежилых помещений: 0, Год ввода в эксплуатацию: 1996, 4-комн, Кол-во жилых помещений: 252, дом 3, корпус 5, да, да, да, да, да, да, Грузовых лифтов: 3, Год постройки: 1996, Днепропетровская улица, 37.602184, 55.622136
Свяжитесь со мной на счет цены
10 дн.
V55S622136L37S602184V

На карте


Условия сделки

Источник


Старт продаж

Возможно заинтересует