Top.Mail.Ru

Шипиловская ул., д. 41, к. 1

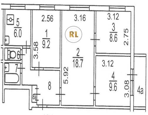
База каталог, Кол-во подъездов: 8, Отсутствует, II-49Д, Москва, Зябликово, Площадь парковки: 1136,2, Пассажирский лифт: 8, От метро: 380, Южный, да, Наименьшее кол-во этажей: 1, Наибольшее кол-во этажей: 9, Шипиловская, Кол-во помещений: 285, Кол-во нежилых помещений: 0, Год ввода в эксплуатацию: 1977, 4-комн, Кол-во жилых помещений: 285, D, дом 41, корпус 1, да, да, да, да, да, да, Имеется, Грузовых лифтов: 0, Год постройки: 1977, Шипиловская улица, 37.737614, 55.622350
Свяжитесь со мной на счет цены
10 дн.
V55S622350L37S737614V

На карте


Условия сделки

Источник


Старт продаж

Возможно заинтересует