Top.Mail.Ru

Задонский проезд, д. 14, к. 2

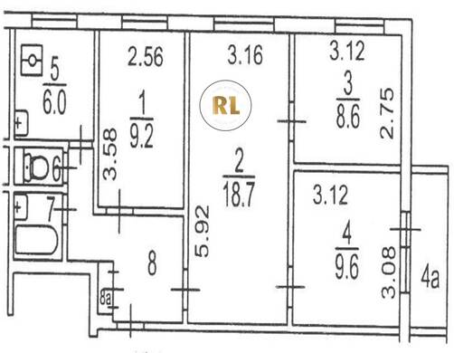
База каталог, Кол-во подъездов: 6, Отсутствует, II-49-06, Москва, Зябликово, Площадь парковки: 0, Пассажирский лифт: 6, От метро: 540, Южный, нет, Наименьшее кол-во этажей: 1, Наибольшее кол-во этажей: 9, Шипиловская, Кол-во помещений: 212, Кол-во нежилых помещений: 0, Год ввода в эксплуатацию: 1977, 4-комн, Кол-во жилых помещений: 212, Не присвоен, дом 14, корпус 2, да, да, да, да, да, да, Отсутствует, Грузовых лифтов: 0, Год постройки: 1977, Задонский проезд, 37.747226, 55.625481
Свяжитесь со мной на счет цены
10 дн.
V55S625481L37S747226V

На карте


Условия сделки

Источник


Старт продаж

Возможно заинтересует