Top.Mail.Ru

Кировоградская ул., д. 10, к. 2

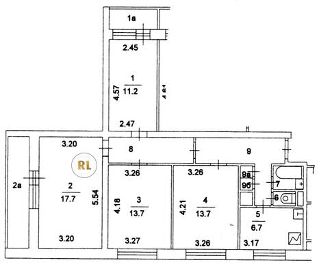
База каталог, Кол-во подъездов: 8, I605-АМ, Москва, Чертаново Северное, Пассажирский лифт: 8, От метро: 380, Южный, да, Наименьшее кол-во этажей: 9, Наибольшее кол-во этажей: 9, Южная, Кол-во помещений: 282, Кол-во нежилых помещений: 0, Год ввода в эксплуатацию: 1969, 4-комн, Кол-во жилых помещений: 282, дом 10, корпус 2, да, да, да, да, да, да, Грузовых лифтов: 0, Год постройки: 1969, Кировоградская улица, 37.608239, 55.626065
Свяжитесь со мной на счет цены
10 дн.
V55S626065L37S608239V

На карте


Условия сделки

Источник


Старт продаж

Возможно заинтересует