Top.Mail.Ru

улица Академика Капицы, д. 6

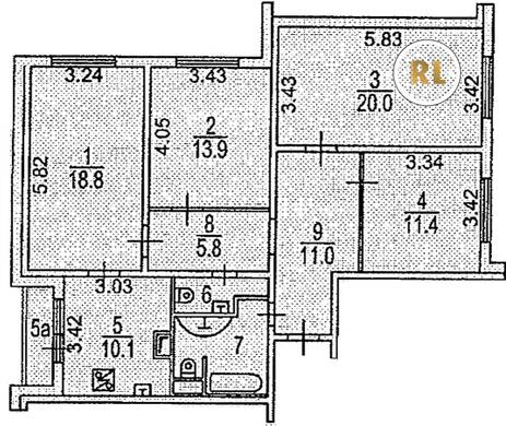
База каталог, Кол-во подъездов: 2, Имеется, КОПЭ, Москва, Коньково, Площадь парковки: 1700, Пассажирский лифт: 4, От метро: 430, Юго-Западный, да, Наименьшее кол-во этажей: 1, Наибольшее кол-во этажей: 22, Коньково, Кол-во помещений: 175, Кол-во нежилых помещений: 1, Год ввода в эксплуатацию: 1986, 4-комн, Кол-во жилых помещений: 174, D, дом 6, да, да, да, да, да, да, Имеется, Грузовых лифтов: 2, Год постройки: 1986, улица Академика Капицы, 37.525297, 55.631224
Свяжитесь со мной на счет цены
10 дн.
V55S631224L37S525297V

На карте


Условия сделки

Источник


Старт продаж

Возможно заинтересует