Top.Mail.Ru

улица Островитянова, д. 32

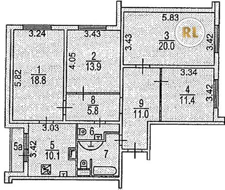
База каталог, Кол-во подъездов: 4, КОПЭ, Москва, Коньково, Площадь парковки: 0, Пассажирский лифт: 8, От метро: 310, Юго-Западный, нет, Наименьшее кол-во этажей: 0, Наибольшее кол-во этажей: 22, Коньково, Кол-во помещений: 364, Кол-во нежилых помещений: 29, Год ввода в эксплуатацию: 1987, 4-комн, Кол-во жилых помещений: 335, D, дом 32, да, да, да, да, да, да, Грузовых лифтов: 4, Год постройки: 1987, улица Островитянова, 37.523016, 55.632499
Свяжитесь со мной на счет цены
10 дн.
V55S632499L37S523016V

На карте


Условия сделки

Источник


Старт продаж

Возможно заинтересует