Top.Mail.Ru

Братеевская ул., д. 23, к. 1

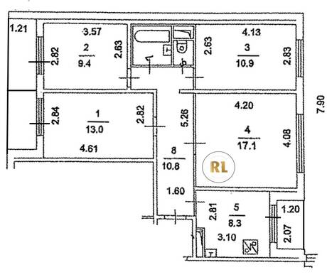
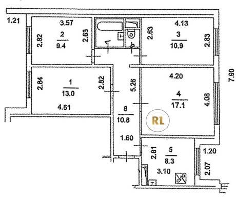
База каталог, Кол-во подъездов: 7, П-30, Москва, Братеево, Площадь парковки: 596, Пассажирский лифт: 14, От метро: 840, Южный, да, Наименьшее кол-во этажей: 14, Наибольшее кол-во этажей: 14, Борисово, Кол-во помещений: 365, Кол-во нежилых помещений: 3, Год ввода в эксплуатацию: 1986, 4-комн, Кол-во жилых помещений: 362, E, дом 23, корпус 1, нет, да, да, да, да, да, Имеется, Грузовых лифтов: 0, Год постройки: 1986, Братеевская улица, 37.754799, 55.632830
Свяжитесь со мной на счет цены
10 дн.
V55S632830L37S754799V

На карте


Условия сделки

Источник


Старт продаж

Возможно заинтересует